Engenharia na Rede

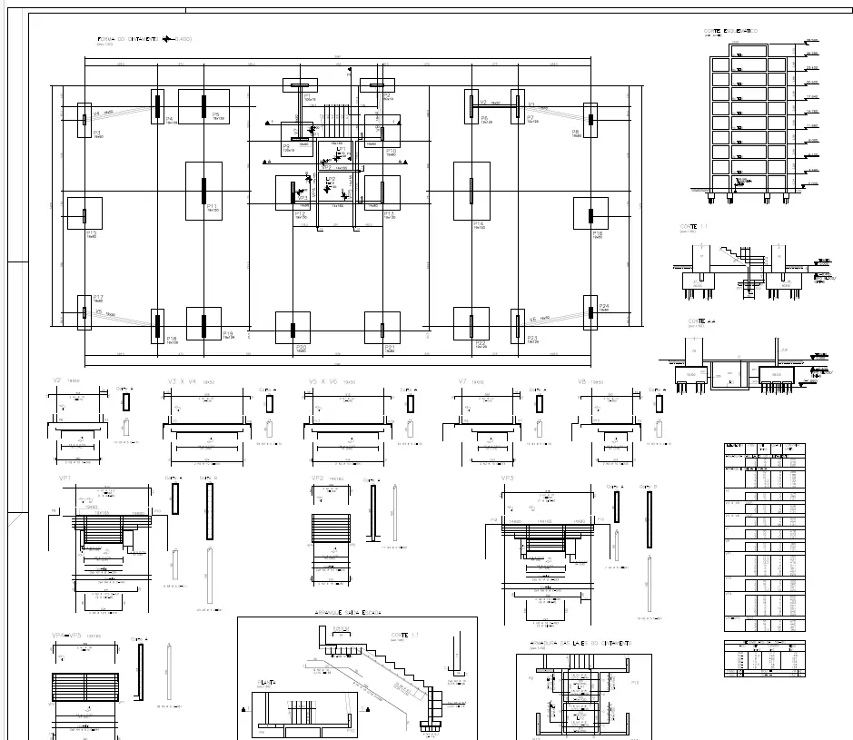
PROJETO DE ESTRUTURAS EM CONCRETO ARMADO

ESTRUTURAS EM CONCRETO ARMADO

Os projetos de estruturas em concreto armado são fundamentais para garantir a segurança, durabilidade e eficiência de qualquer obra. Seja para obras residenciais, comerciais ou industriais, contar com um projeto estrutural em concreto armado bem dimensionado é essencial para evitar patologias, reduzir custos e assegurar o desempenho da edificação ao longo do tempo.

Atuamos com elaboração de projetos de estruturas em concreto armado conforme normas vigentes da ABNT, considerando as características e necessidades específicas de cada obra.

VANTAGENS PARA CONSTRUÇÕES COM ESTRUTURAS EM CONCRETO ARMADO:

Maior versatilidade arquitetônica

Facilidade para encontrar mão de obra qualificada para a execução

Boa resistência ao fogo

Custo-benefício competitivo

Alta resistência e durabilidade

PERGUNTAS FREQUENTES:

Sim. Todos os projetos que desenvolvemos são acompanhados da devida Anotação de Responsabilidade Técnica (ART) do engenheiro projetista.

Os projetos contratados são encaminhados para o cliente em formato PDF (para impressão em gráfica), DWG e IFC, via e-mail e WhatsApp.

Sim. Desde que não tenha ocorrido alterações no projeto arquitetônico previamente fornecido pelo cliente.